
QA159
Bellagio Road
Project
QA159
Location
Los Angeles
Category
Private Residential
Status
Commenced
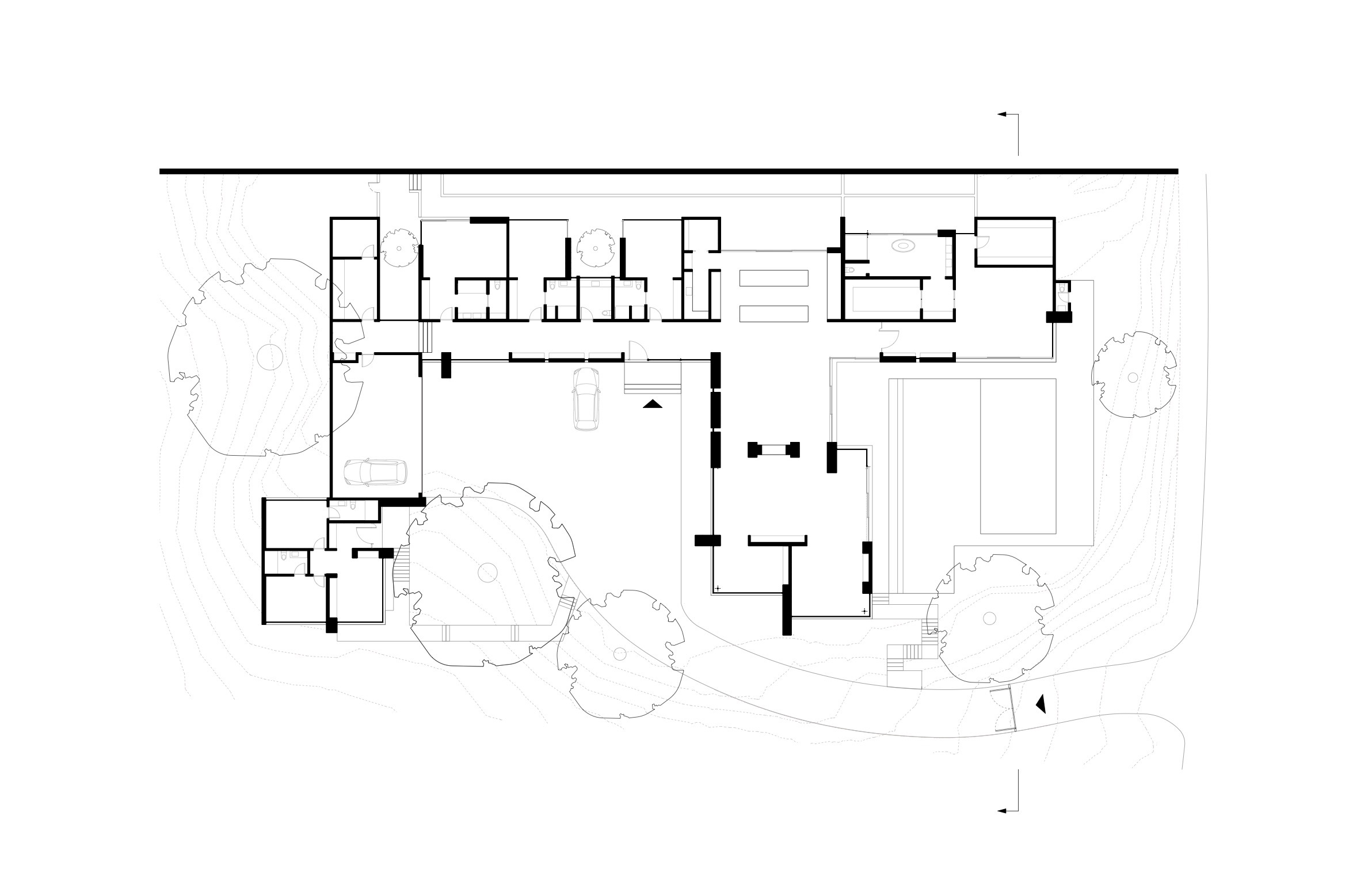
A 11,000 sq/ft single storey home anchored around a series of courtyard gardens with grand vistas overlooking Santa Monica and the Getty Museum in Los Angeles.




A 11,000 sq/ft single storey home anchored around a series of courtyard gardens with grand vistas overlooking Santa Monica and the Getty Museum in Los Angeles.


An expansive 11,000 sq.ft single storey home in Los Angeles, with each room anchored round a series of courtyard gardens with grand views of Santa Monica. The house is composed of elegant but robust palette of materials; local stone, in-situ and precast raked concrete for the exterior with cast terrazzo floors, red cedar walls, joinery and feature ceilings. Local stone is used throughout the terraced areas and pool to provide a context with the surrounding landscape. Natural light is maximised using a combination of strategically placed skylights, clerestory windows and full height sliding panels.
