
QA171
House for an Art Collector
Project
QA171
Location
London
Category
Private Residential
Status
Completed
An extensive internal refurbishment to a Queen Anne revival style townhouse, with private gallery and basement addition, for a significant art collector and patron.


Undertaken by London’s Quinn Architects and Milan’s Studio Monzini & Raboni. The all white walls, grey stone and wooden floors, and steel framed glass partitions create an elegant, thoughtful backdrop to the house’s main focus: the vibrant art and design. “My intention was really to accommodate the art as if it’s another one of my children,” smiles Napoleone. “I want to honour my most beloved pieces while keeping the balance of a home.
Victoria Woodcock, FT Magazine






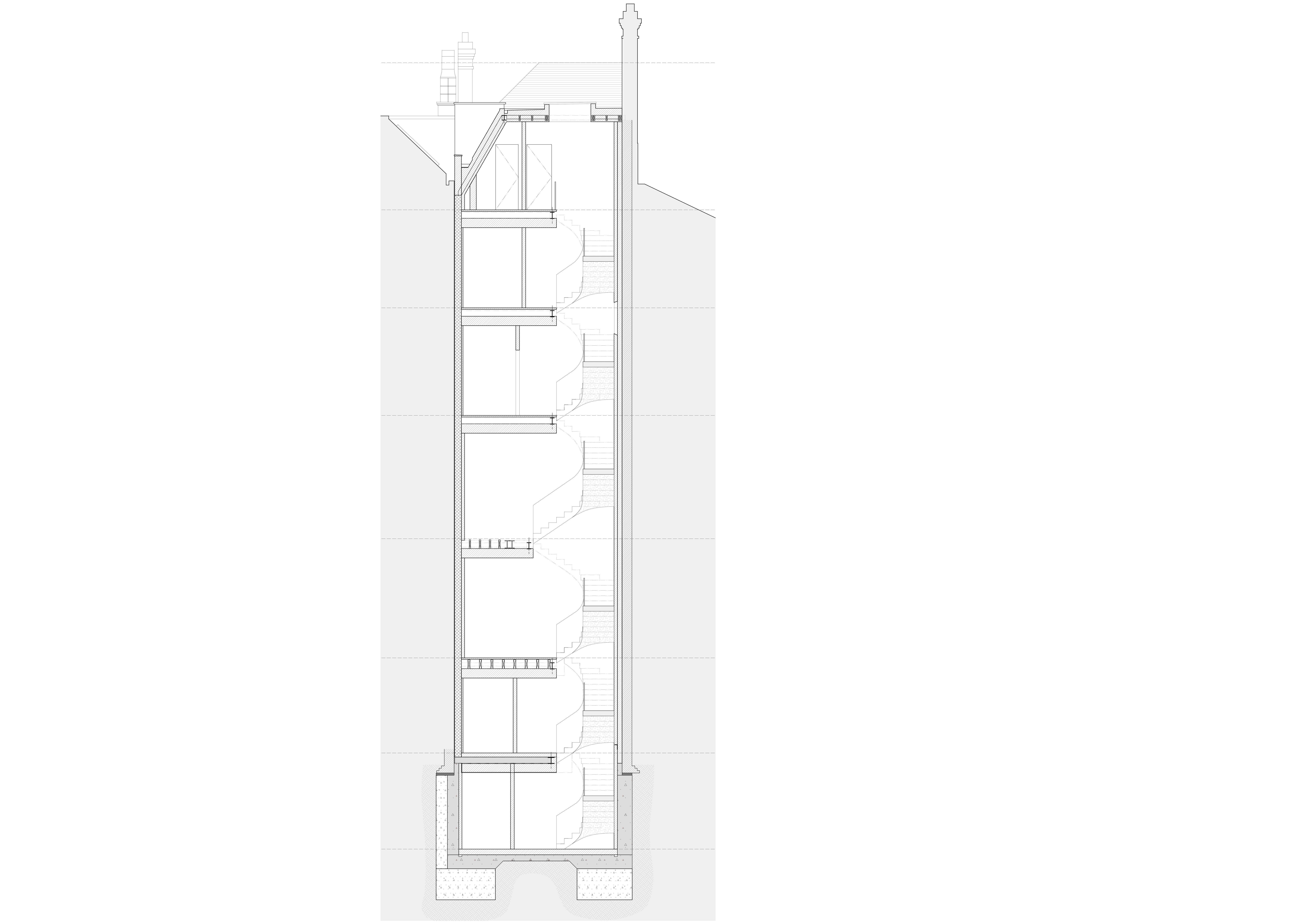
This seven-storey terrace house was originally built in the 1880s, and forms part of the exclusive Kensington Court Conservation Area. The house is of traditional Victorian construction, with influences from the Arts and Crafts period present in the red brick facade, white painted brackets and ironwork decoration. The project faithfully restored the decorative qualities of the original building, whilst taking the opportunity to re-invigorate the internal rooms with a minimal contemporary style. In addition to providing a home for a young family, the residence is part-used as a private gallery, designed around the owner’s significant art collection. Quinn Architects also worked collaboratively with international artists such as Nathalie du Pasquier and Martino Gamper, to produce bespoke fittings and furniture tailor-made for the house.


The niches alongside the grand staircase—its steps fashioned from pietra serena, a gray sandstone that was used in Renaissance Florence —came at the suggestion of the conceptual artist Mika Tajima. “Valeria wanted to have a view of something at every point of the house,” Tajima said. Because people might bump against the walls of the stairs, Napoleone planned to limit art to the landings, until Tajima raised the notion of placing pieces in alcoves. “Why wouldn’t you be able to experience art as you climb the stairs?” she asked. Napoleone replied, “I’m going to tell the architect to change the plans immediately!” As Tajima remarked, “It’s not about practicality; it’s about the end result for the art.
Arthur Lubow, W Magazine






